Über Uns
Leistungsphasen
Projekte
Scan to Bim
Kontakt
Über Uns
Leistungsphasen
Projekte
Scan to Bim
Kontakt
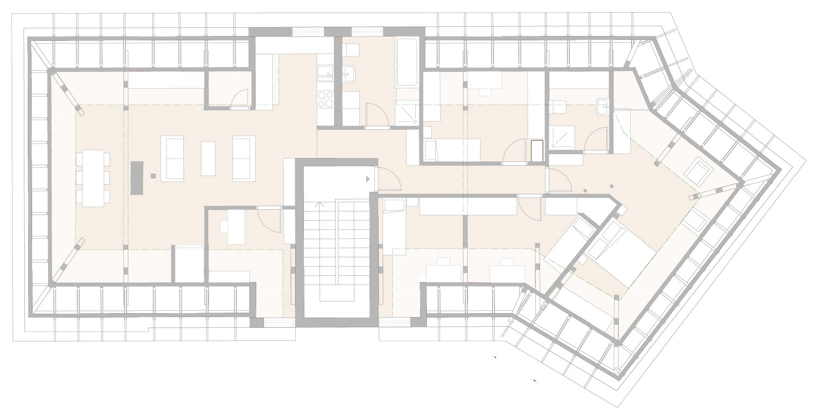
Oskarstraße
Dachausbau | Stand des Projekts: beendet
Besuch vor Ort
Scannen
Modellierung
Plaunung/Dokumentation
Baustelle
You may also like
Wisbyer Str.
2022
Katzbachstr
2023
Tornow
2023
Rathenaustraße
2022
Michendorf
2024
↑
Back to Top